Verkocht:Vulcanushof 63A, 6215 RT Maastricht - Foto
Verkocht
+24

Vulcanushof 63A 6215 RT Maastricht

  • Appartement
  • 3 kamers
  • 1 badkamer
  • Bouwjaar 1980
  • 45 m² gebruiksoppervlakte
  • C Energielabel C

Beschrijving

Dit gezellige appartement is rustig gelegen maar ideaal gesitueerd ten opzichte van winkels en openbaar vervoer. De afstand tot het stadscentrum is slechts 3 km en met de zeer frequente busverbinding is zowel het stadscentrum als MUMC+ en Universiteit Maastricht direct bereikbaar.
Het appartement bevindt zich op de begane grond van een kleinschalig appartementencomplex en beschikt over een tuin, ideaal voor starters.
Op steenworpafstand is winkelcentrum Daalhof te vinden met een veelzijdig winkelaanbod. Het appartement is voorzien van kunststof kozijnen en dubbelglas.

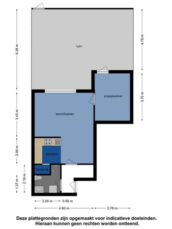
Indeling:
Direct na binnenkomst biedt een compacte gang de mogelijkheid om de badkamer en woonkamer te bereiken. In deze gang is eveneens een nis aanwezig welke als gardrobe is bedoeld. De badkamer (ca. 4 m²) is voorzien van een douche, wasbak, toilet en aansluiting voor een wasmachine/wasdroger. In de badkamer is eveneens een nis aanwezig waar de CV-ketel (eigendom, bj. 2019) is ondergebracht.

Vanuit de woonkamer (ca. 20 m²) is zicht op de onderhoudsvriendelijke tuin waarbij de mogelijkheid bestaat om het bestaande kozijn en borstwering te vervangen door een schuifpui of open slaande deuren. Hiermee zal de verbinding met de tuin nog beter ervaren worden.
Vanuit de woonkamer is er tevens toegang tot de slaapkamer en de open keuken. De gezellige keuken (ca. 5 m²) is voorzien van de volgende inbouwapparatuur: oven, koelkast, vaatwasser, 4-pits gasfornuis. Voor het opbergen van spullen is vanuit de keuken toegang tot een berging.
Zowel de woonkamer als de slaapkamer zijn voorzien van dezelfde laminaat welke ononderbroken in beide ruimtes is doorgelegd.

Vanuit de slaapkamer (ca. 10,5 m²) is toegang tot de tuin. Deze tuin is onderhoudsvriendelijke tuin van (ca. 40 m²) is op het westen georiënteerd en voorzien van een achterom.

Het appartementencomplex is voorzien van een gezamenlijke fietsenberging waar ook de privè-berging (1m²) is gelegen. Rondom het appartementencomplex is op eigen terrein voldoende parkeergelegenheid te vinden.


Bijzonderheden:
- Ideaal voor starters;
- Winkels en openbaar vervoer om de hoek
- Met onderhoudsvriendelijke tuin;
- Kunststof kozijnen en dubbel glas;
- VvE kosten €154,18 per maand;
- Energielabel C.

Overig
Deze informatie is door ons met de nodige zorgvuldigheid samengesteld. Onzerzijds wordt echter geen enkele aansprakelijkheid aanvaard voor enige onvolledigheid, onjuist of anderszins, dan wel de gevolgen daarvan. Alle opgegeven maten en oppervlakten zijn indicatief. Van toepassing zijn de algemene voorwaarden.

Ter bescherming van de belangen van zowel koper als verkoper, wordt uitdrukkelijk gesteld dat een koopovereenkomst met betrekking tot deze onroerende zaak eerst dan tot stand komt nadat koper en verkoper de koopovereenkomst hebben getekend (“schriftelijkheidsvereiste”).
De termijn die wordt opgenomen voor eventuele (overeengekomen) ontbindende voorwaarden (bv. financiering) is in de regel 4 tot 6 weken na het sluiten van de mondelinge wilsovereenkomst.
De waarborgsom/bankgarantie is 10% van de koopsom. De koper dient deze 2 weken ná het vervallen van de ontbindende voorwaarden bij de desbetreffende notaris te deponeren.
Koper is te allen tijde gerechtigd voor eigen rekening een bouwkundige keuring te (laten) verrichten dan wel andere adviseurs te raadplegen teneinde een goed inzicht te verkrijgen over de staat van onderhoud.

Gehele of gedeeltelijke overname, plaatsing op andere sites, verveelvoudiging op welke andere wijze dan ook en/of commercieel gebruik van deze informatie (zoals foto’s, plattegronden, teksten etc.), is niet toegestaan, tenzij hiervoor uitdrukkelijk schriftelijke toestemming is verleend door Deniq Vastgoed, of tenzij aan de onderstaande voorwaarden wordt voldaan.

Deze informatie mag worden bekeken op een scherm, gedownload worden op een hard-disk of geprint worden, mits dit geschied voor persoonlijk, informatief en niet-commercieel gebruik, mits de informatie niet gewijzigd wordt, en mits de informatie niet wordt gebruikt in een ander werk of publicatie in welk medium dan ook.
Het beheer van de pagina’s en de getoonde content op deze website wordt beheert door Deniq Vastgoed.

Kaart

Kenmerken

Overdracht

Referentienummer
00072
Prijs
€ 174.500,- k.k.
Status
Verkocht
Aanvaarding
In overleg
Laatste wijziging
Maandag 17 maart 2025

Bouw

Type object
Appartement, benedenwoning
Woonlaag
1e woonlaag
Soort bouw
Bestaande bouw
Bouwperiode
1980
Dakbedekking
Bitumen
Type dak
Platdak

Oppervlaktes en inhoud

Woonoppervlakte
45 m²
Woonkameroppervlakte
7 m²
Keukenoppervlakte
5 m²
Inhoud
140 m³
Oppervlakte overige inpandige ruimten
1 m²

Indeling

Aantal bouwlagen
1
Aantal kamers
3
Aantal badkamers
1

Locatie

Ligging
Aan rustige weg
In woonwijk

Tuin

Type
Achtertuin
Hoofdtuin
Ja
Oriëntering
West
Heeft een achterom
Ja
Staat
Goed onderhouden

Energieverbruik

Energielabel
C

CV ketel

CV ketel
Combi
Warmtebron
Gas
Bouwjaar
2019
Combiketel
Ja
Eigendom
Eigendom

Uitrusting

Warm water
CV-ketel
Verwarmingssysteem
Centrale verwarming
Badkamervoorzieningen
Douche
Toilet
Wasmachineaansluiting
Wastafel
Tuin aanwezig
Ja

Kadastrale gegevens

Kadastrale aanduiding
Maastricht O 6119
Omvang
Appartementsrecht of complex
Eigendomsituatie
Eigen grond